Unsere Wohnungsangebote
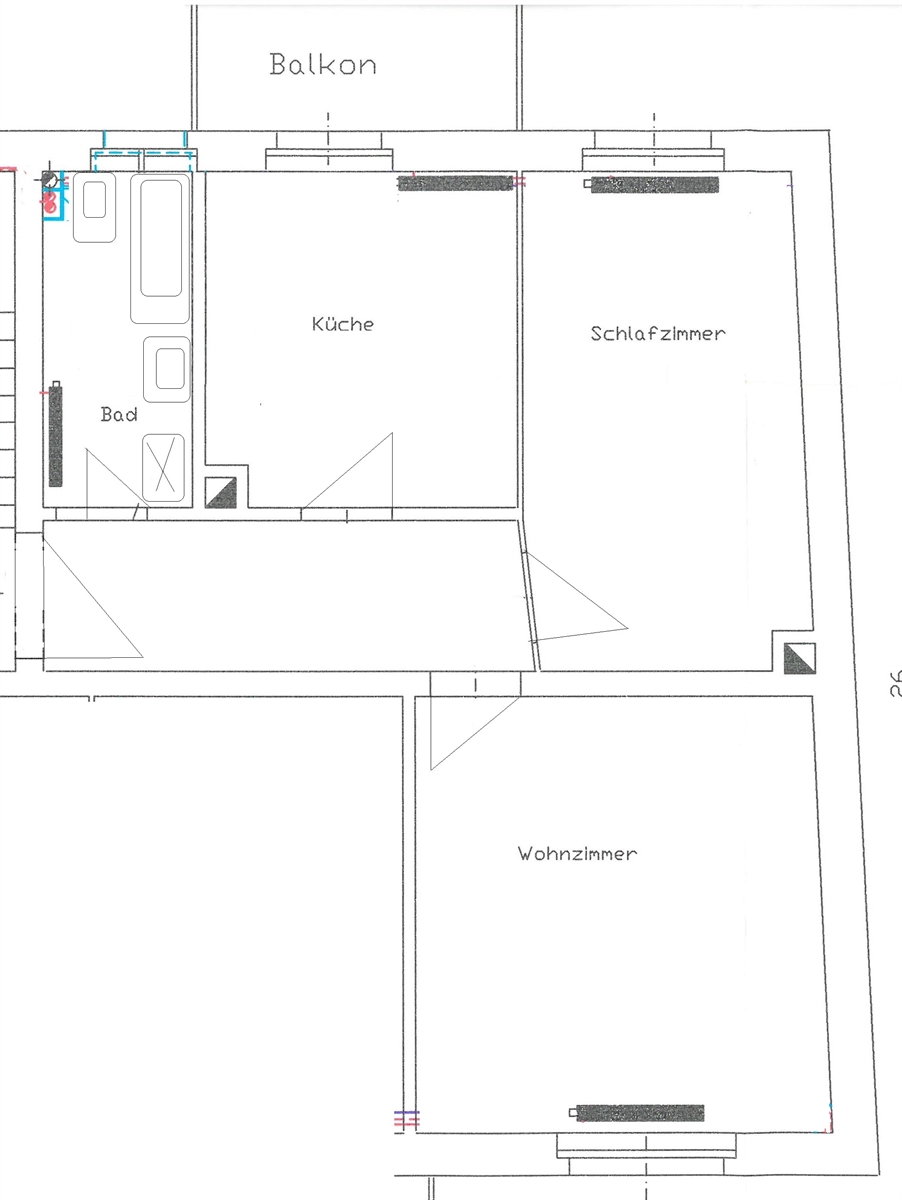
Schöne 2-Raum-Wohnung mit Balkon - Bezug nach Sanierung - ab April 2025 möglich - 54m²
Grimmaische Straße 9 , 04720 Döbeln
Details
| Objekt Nr.: | 001-062-202 |
| Zimmeranzahl: | 2 |
| Wohnfläche: | 51,25 m2 |
| Lage: | 1. Etage |
| Verfügbar ab: | 01.07.2026 |
Merkmale der Wohnung
| Ausstattung: | Balkon, Bad mit Fenster, Wanne |
Zahlen und Fakten
| Gesamtmiete: | 490,00 € |
| Kaltmiete: | 280,00 € |
| Nebenkosten: | 110,00 € |
| Heizkosten: | 100,00 € |
| Geschäftsanteile: | 320,00 € |
Energieverbrauch
| Endenergiebedarf: | 160.00 kWh/m2a |
| Baujahr: | 1934 |
| Wertklasse: | C |
| Heizung: | Zentralheizung, Gas |
Ausstattungsbeschreibung
AUSSTATTUNG:
2 helle Zimmer
Große Küche mit viel Platz
Badezimmer mit Badewanne
Balkon mit schönem Ausblick
Aufzug im Haus
Wohnumfeld
EXPOSÉ: HELLE 2-ZIMMER-WOHNUNG MIT BALKON UND GROSSER KÜCHE
Bodenbelag und Malerarbeiten folgen schnellstmöglich!
Objekttyp: Mietwohnung Adresse: Grimmaische Straße 9, 04720 Döbeln Wohnfläche: ca. 54 m² Zimmer: 2 Verfügbar ab: Nach Vereinbarung Besonderheiten: Balkon, große Küche, Badewanne, Aufzug im Haus
OBJEKTBESCHREIBUNG:
Diese charmante 2-Zimmer-Wohnung in der Grimmaischen Straße 9 bietet auf ca. 54 m² ein komfortables Wohnambiente. Besonders hervorzuheben sind die großzügige Küche und der sonnige Balkon, der zum Entspannen einlädt.
Der lichtdurchflutete Wohnbereich bietet Platz für gemütliche Stunden, während das Schlafzimmer ausreichend Rückzugsmöglichkeiten schafft. Das Badezimmer ist mit einer Badewanne ausgestattet – ideal für entspannte Momente. Ein Aufzug im Haus sorgt für zusätzlichen Komfort.
Infrastruktur
LAGE:
Die Wohnung befindet sich in zentraler Lage von Döbeln, mit guter Anbindung an Einkaufsmöglichkeiten, öffentliche Verkehrsmittel und weitere Einrichtungen des täglichen Bedarfs. Gleichzeitig bietet die Umgebung eine angenehme Wohnatmosphäre.
SONSTIGES:
Die Wohnung kann nach Vereinbarung besichtigt werden.
Interesse geweckt? Kontaktieren Sie uns gerne für weitere Informationen oder zur Vereinbarung eines Besichtigungstermins!
Sonstige Angaben
Energieausweis liegt in der Geschäftsstelle zur Einsicht vor
Objektanfrage
Felder die mit * gekennzeichnet sind, sind Pflichtfelder.
Ansprechpartner
| Name | Gordon G. Oswald |
| info@gwgdoebeln.de | |
| Telefonnummer | + 49 3431 625760 |
